Verkocht:Oude-Molenstraat 1A14, 9401 DA Assen - Foto
Verkocht
+28

Oude-Molenstraat 1A14 9401 DA Assen

  • Appartement
  • 3 kamers
  • 2 slaapkamers
  • 1 badkamers
  • Bouwjaar 2021
  • 72 m² gebruiksoppervlakte
  • A++ Energielabel A++

Beschrijving

Nieuwbouw appartement in Koopmanstaete met twee ruime slaapkamers in het centrum van Assen.

Vier jaar geleden zijn deze nieuwe appartementen in hartje Assen opgeleverd. Het is dus van alle gemakken voorzien en met recht modern en instap-klaar te noemen. Met alle voorzieningen op loopafstand zoals een supermarkt, winkels, restaurants en cafés is dit de ideale plek om te wonen. Daarnaast heeft het een energielabel A++ en is er de mogelijkheid om één van de slaapkamers bij de woonkamer te betrekken voor een ruimere woonkamer. Voor ieder wat wils dus!

Indeling:
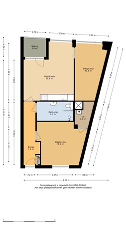
Via de gezamenlijke entree is het complex toegankelijk. Het appartement is gelegen op de eerste verdieping en met de trap of lift bereikbaar. Hier bevindt zich een grote gedeelde binnenplaats. Hier is de ingang naar het appartement met als eerste de hal en toegang tot de woonkamer met moderne, open keuken met alle nodige inbouwapparatuur zoals een vaatwasser, oven, inductiekookplaat, koelkast met vriesvak en een afzuigkap. Vanwege de grote raampartijen heeft deze ruimte veel daglicht. Vanuit de woonkeuken is het balkon toegankelijk en de eerste slaapkamer van ca. 14 m² met een grote raampartij. Indien je een grotere woonkamer en/of eethoek zou willen hebben, is deze kamer ook gemakkelijk bij de woonkamer te betrekken. Aan de achterzijde van het het appartement is de grootste slaapkamer gelegen van ca. 17 m². Ook is hier nog een opbergruimte met de technische ruimte. Vanuit de hal is de badkamer te vinden welke is voorzien van een toilet, inloopdouche en wastafel.
Beneden in het complex is een gemeenschappelijke berging te vinden voor de fiets.

-Energielabel A++
-Voorzien van een lift
-Voorzien van warmtepomp
-Gelegen in hartje Assen
-Originele bouwjaar 1993, volledig renovatie/nieuwbouw van de bovenliggende appartementen in 2021.

Kaart

Kenmerken

Overdracht

Referentienummer
0040
Vraagprijs
€ 245.000,- k.k.
Servicekosten
€ 145,-
Status
Verkocht
Aanvaarding
In overleg
Aangeboden sinds
Maandag 16 juni 2025
Laatste wijziging
Donderdag 7 augustus 2025

Bouw

Type object
Appartement, portiekflat
Woonlaag
1e woonlaag
Soort bouw
Bestaande bouw
Bouwperiode
2021
Type dak
Platdak
Isolatievormen
Dubbel glas
HR-glas
Muurisolatie

Oppervlaktes en inhoud

Woonoppervlakte
71,85 m²
Woonkameroppervlakte
22,5 m²
Inhoud
233 m³
Oppervlakte gebouwgebonden buitenruimte
3,94 m²
Balkonoppervlakte
3,9 m²

Indeling

Aantal bouwlagen
1
Aantal kamers
3 (waarvan 2 slaapkamers)
Aantal badkamers
1

Energieverbruik

Energielabel
A++

Uitrusting

Verwarmingssysteem
Warmtepomp
Ventilatie methode
Balansventilatie
Badkamervoorzieningen
Douche
Toilet
Wastafel
Heeft een balkon
Ja
Heeft een lift
Ja

Vereniging van Eigenaren

Ingeschreven bij de KvK
Ja
Jaarlijkse vergadering
Ja
Periodieke bijdrage
Ja
Reservefonds
Ja
Meer jaren onderhoudsplan
Ja
Onderhoudsverwachting
Ja
Opstal verzekering
Ja

Kadastrale gegevens

Kadastrale aanduiding
Assen S 3267A
Omvang
Appartementsrecht of complex
Eigendomsituatie
Eigen grond

Brochure(s) en overige bijlagen

Oude-Molenstraat 1-A14, 9401 DA ASSEN (1) Download