Verkocht:Burchtstraat 6, 9711 LT Groningen - Foto
Verkocht
+34

Burchtstraat 6 9711 LT Groningen

  • Woonhuis
  • 5 kamers
  • 3 slaapkamers
  • 2 badkamers
  • Bouwjaar 1860
  • 42 m² perceeloppervlakte
  • 107 m² gebruiksoppervlakte
  • E Energielabel E

Beschrijving

Authentieke stadswoning, met multifunctionele ruimte op de begane grond, in hartje centrum! Op een prachtige locatie in hartje centrum staat dit sfeervolle, vrijstaande woonhuis met balkon en dakterras. Deze woning uit 1860 heeft een prachtige statige uitstraling en biedt veel mogelijkheden. Er zijn namelijk twee volwaardige woningen aanwezig wat het ideaal maakt voor dubbele bewoning of een werkplek aan huis. In zowel het onderste als het bovenste deel van de woning zijn een badkamer, keuken, toilet, woonkamer en slaapkamer(s) aanwezig wat het perfect maakt voor verschillende doeleinden. Stel je voor dat een atelier, galerie of een kantoor direct bij je woning kan zijn. Mensen ontvangen is geen probleem doordat het bovenste en onderste vertrek goed van elkaar te scheiden zijn.

Dit woonhuis is echt een liefhebberswoning waarbij de koper de kans heeft om het geheel naar eigen wens en smaak te moderniseren. Aan de achterzijde van de woning is er een balkon op de eerste verdieping en op de tweede verdieping is er mogelijkheid tot een ruim dakterras.

De entree bevindt zich in de Burchtstraat, een straatje tussen de Oosterstraat en Kleine Gelkingestraat. Het pand is ideaal gelegen, hartje centrum, in een nagenoeg autovrije straat op steenworp afstand van de grote markt, NS-station, winkels en culturele voorzieningen.

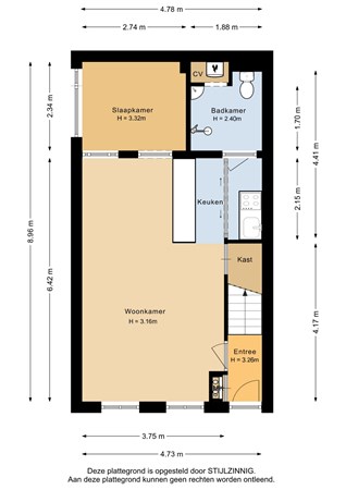
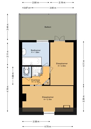
INDELING
Begane grond: Entree/hal met toegang tot de trap naar de eerste verdieping of naar het woongedeelte op de begane grond. Hier bevindt zich de woonkamer van 28 m2 met keuken en aparte werkkamer of slaapkamer van 6 m2. Tevens is hier de badkamer met douche, wastafel en toilet.
Eerste verdieping: de tweede woonkamer met ruimte voor een zit- en eetgedeelte. In de woonkamer is een open trap en een half open keuken. Samen is dit ca. 34m2 en er is toegang tot het terras aan de achterzijde.
Tweede verdieping: overloop met inbouwkast en apart toilet. Hier zijn twee slaapkamers. Eén van de slaapkamers bevindt zich aan de voorzijde en één aan de achterzijde en ze zijn ca. 9 en 11 m2. De achterste slaapkamer geeft toegang tot het ruime dakterras. Tevens bevindt zich op deze verdieping de tweede badkamer van de woning met douche/ligbad en wastafel.

BIJZONDERHEDEN:
- Woonoppervlak: ca. 107 m²
- Beschermd stadsgezicht en deels monumentaal (gemeentelijk monument light)
- Voorzijde voorzien van monumenten glas (2024)
- Authentieke details
- Geschikt wonen/werken; begane grond is separaat te gebruiken t.o.v. de bovenwoning
- Gelegen in hartje centrum

Kaart

Kenmerken

Overdracht

Referentienummer
0009
Vraagprijs
€ 425.000,- k.k.
Status
Verkocht
Aanvaarding
In overleg
Aangeboden sinds
Dinsdag 4 maart 2025
Laatste wijziging
Vrijdag 16 mei 2025

Bouw

Type object
Woonhuis, eengezinswoning, half vrijstaande woning
Soort bouw
Bestaande bouw
Bouwperiode
1860
Dakbedekking
Bitumen
Dakpannen
Type dak
Samengesteld
Isolatievormen
Gedeeltelijk dubbel glas

Oppervlaktes en inhoud

Perceeloppervlakte
42 m²
Woonoppervlakte
107 m²
Woonkameroppervlakte
57 m²
Keukenoppervlakte
4,3 m²
Inhoud
412 m³
Oppervlakte gebouwgebonden buitenruimte
20 m²

Indeling

Aantal bouwlagen
3
Aantal kamers
5 (waarvan 3 slaapkamers)
Aantal badkamers
2

Energieverbruik

Energielabel
E

CV ketel

Warmtebron
Gas
Eigendom
Eigendom

Uitrusting

Verwarmingssysteem
Centrale verwarming
Badkamervoorzieningen Badkamer 1
Douche
Toilet
Wastafel
Badkamervoorzieningen Badkamer 2
Douche
Ligbad
Wastafel

Kadastrale gegevens

Kadastrale aanduiding
Groningen H 3441
Perceeloppervlakte
42 m²
Omvang
Geheel perceel
Eigendomsituatie
Eigen grond