Nieuw in verkoop:Prinsesseweg 40, 9717 BJ Groningen - Foto
Nieuw in verkoop
+28

Prinsesseweg 40 9717 BJ Groningen € 340.000,- k.k.

  • Appartement
  • 3 kamers
  • 2 slaapkamers
  • 1 badkamers
  • Bouwjaar 1927
  • 119 m² perceeloppervlakte
  • 78 m² gebruiksoppervlakte
  • C Energielabel C

Beschrijving

Charmant, instapklaar én een tuin waar je elk seizoen wilt zijn: dat is deze sfeervolle woning in de geliefde Oranjewijk. Alles klopt hier: karaktervolle details, een moderne afwerking en een tuin die binnen en buiten laat samensmelten.

De Oranjewijk is een gezellige wijk, op slechts enkele minuten fietsen van de Groningse binnenstad.
Voor je dagelijkse boodschappen loop je zo naar de Jumbo aan het einde van de straat en ook verschillende horecagelegenheden zijn binnen handbereik. Voor een ontspannen wandeling ben je binnen no-time in het groene Noorderplantsoen. De bereikbaarheid is top: bushalte schuin voor de deur, station Groningen Noord op een paar minuten fietsen en met de auto sta je via de westelijke ringweg zo buiten de stad.

Indeling:
Je komt binnen in een hal met tochtportaal en een handige inbouwkast voor jassen en schoenen. De lichte woonkamer met erker heeft een prachtige houten vloer en openslaande deuren naar de tuin, waardoor binnen en buiten vloeiend in elkaar overlopen. De keuken is praktisch én compleet: voorzien van een vaatwasser, combimagnetron, gaskookplaat, koelkast en een ruime inbouwkast. Op de begane grond is ook het eerste toilet aanwezig.
Op de eerste verdieping vind je een gloednieuwe badkamer die echt een eyecatcher is. Het heeft een tweede toilet, royale inloopdouche, dubbele wastafel met meubel en mechanische ventilatie.
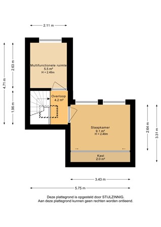
De tweede verdieping is verrassend licht dankzij de lichtkoepel op de overloop en biedt ruimte aan twee slaapkamers.
De achtertuin is een echte plus: het is maar liefst 12 meter diep en heeft alles voor een fijne buitenplek. Denk aan een handige overkapping voor de fietsen, twee gezellige terrassen en een achterom. Tot slot is er een aangebouwde berging met aansluiting voor de wasmachine en opbergruimte

- Tuin op het westen
- Nieuwe badkamer en toilet (2025)
- Volledig voorzien van dubbele of HR++ beglazing
- Achterzijde voorzien van kunststof kozijnen
- Voorzien van 5 zonnepanelen (2023)
- Dakbedekking vernieuwd 2020

Kaart

Kenmerken

Overdracht

Referentienummer
0103
Vraagprijs
€ 340.000,- k.k.
Status
Nieuw in verkoop
Aanvaarding
In overleg
Aangeboden sinds
Donderdag 13 november 2025

Bouw

Type object
Appartement, benedenwoning
Woonlaag
1e woonlaag
Soort bouw
Bestaande bouw
Bouwperiode
1927
Type dak
Platdak
Isolatievormen
Driedubbel glas
Dubbel glas
HR-glas

Oppervlaktes en inhoud

Perceeloppervlakte
119 m²
Woonoppervlakte
78 m²
Woonkameroppervlakte
23,3 m²
Keukenoppervlakte
6,1 m²
Inhoud
309 m³
Oppervlakte overige inpandige ruimten
4,53 m²
Oppervlakte gebouwgebonden buitenruimte
3,97 m²

Indeling

Aantal bouwlagen
3
Aantal kamers
3 (waarvan 2 slaapkamers)
Aantal badkamers
1 (en 1 apart toilet)

Tuin

Type
Achtertuin
Hoofdtuin
Ja
Oriëntering
West
Heeft een achterom
Ja
Staat
Prachtig aangelegd

Energieverbruik

Energielabel
C

CV ketel

CV ketel
Intergas, HRE 36/30
Warmtebron
Gas
Bouwjaar
2017
Eigendom
Eigendom

Uitrusting

Warm water
CV-ketel
Verwarmingssysteem
Centrale verwarming
Keukenvoorzieningen
Inbouwapparatuur
Badkamervoorzieningen
Douche
Dubbele wastafel
Inloopdouche
Toilet
Wastafelmeubel
Tuin aanwezig
Ja
Heeft schuur/berging
Ja
Heeft zonnepanelen
Ja

Vereniging van Eigenaren

Ingeschreven bij de KvK
Ja

Kadastrale gegevens

Kadastrale aanduiding
Groningen D 4951
Perceeloppervlakte
119 m²
Omvang
Appartementsrecht of complex
Eigendomsituatie
Eigen grond