Onder bod:Tuinbouwstraat 107, 9717 JE Groningen - Foto
Onder bod
+22

Tuinbouwstraat 107 9717 JE Groningen € 299.000,- k.k.

  • Appartement
  • 3 kamers
  • 2 slaapkamers
  • 1 badkamers
  • Bouwjaar 1917
  • 70 m² gebruiksoppervlakte
  • A Energielabel A

Beschrijving

Deze nette benedenwoning aan de Tuinbouwstraat ligt op een fantastische plek: met het Noorderplantsoen letterlijk om de hoek en de binnenstad op een paar minuten fietsen. De woning is keurig afgewerkt, instap-klaar én beschikt over een eigen, grote tuin.

De ligging is populair onder Stadjers en dat is niet voor niets. In de directe omgeving vind je allerlei voorzieningen, zoals supermarkten, gezellige horeca en goede verbindingen met het openbaar vervoer. Station Noord ligt op loopafstand en met de auto zit je via de Bedumerweg zo op de ringweg. En dan is er natuurlijk nog het Noorderplantsoen: dé plek om in de zomer te relaxen met een boek of ’s winters een frisse wandeling te maken. Het voelt bijna als je eigen achtertuin!

Indeling:
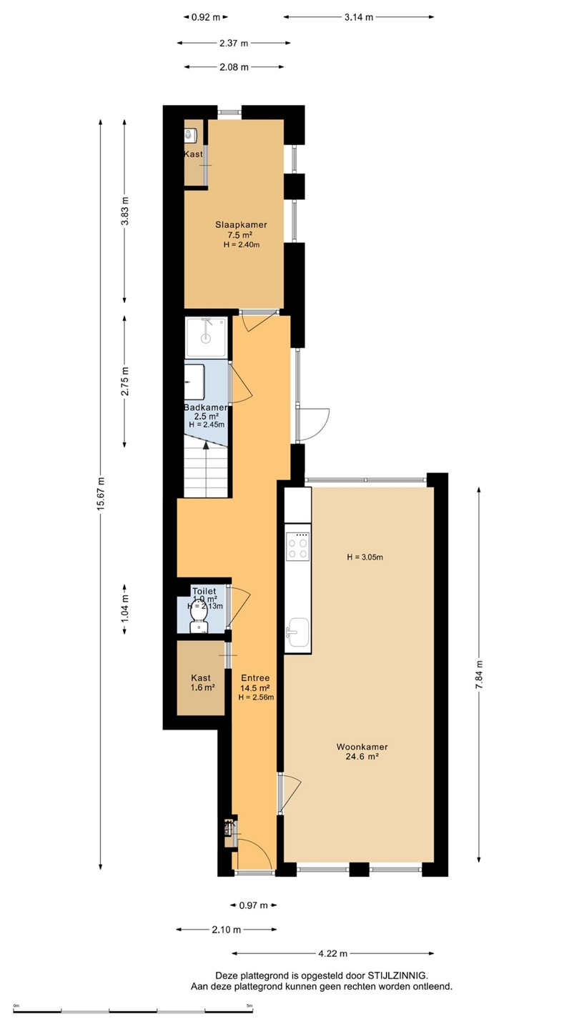
Bij binnenkomst stap je de hal in. Aan je rechterhand bevindt zich de lichte en ruime woonkamer met moderne open keuken van circa 25 m². De grote raampartijen aan zowel de voor- als achterzijde zorgen voor een prettige hoeveelheid daglicht door de hoogte van het plafond en de ramen. De ramen aan de voorzijde zijn nog voorzien van prachtig, kleurrijk glas-in-lood. De keuken is voorzien van diverse inbouwapparatuur zoals een vaatwasser, koelkast en vriezer. Vanuit de hal bereik je het toilet en de eerste slaapkamer (circa 7,5 m²). De recent vernieuwde badkamer is strak en modern afgewerkt. Op de bovenverdieping vind je de tweede slaapkamer van circa 15 m². Tot slot beschikt de woning over een ruime achtertuin van zo'n 17 meter diep. Het heeft tevens een achterom.

- Energielabel A!
- Moderne badkamer en keuken
- Voorzien van zonnepanelen
- Ruime tuin
- Noorderplantsoen om de hoek

Kaart

Kenmerken

Overdracht

Referentienummer
0058
Vraagprijs
€ 299.000,- k.k.
Status
Onder bod
Aanvaarding
In overleg
Aangeboden sinds
Vrijdag 10 oktober 2025
Laatste wijziging
Dinsdag 4 november 2025

Bouw

Type object
Appartement, benedenwoning
Woonlaag
1e woonlaag
Soort bouw
Bestaande bouw
Bouwperiode
1917
Type dak
Samengesteld
Isolatievormen
Dubbel glas

Oppervlaktes en inhoud

Woonoppervlakte
70 m²
Woonkameroppervlakte
24,6 m²
Inhoud
292 m³

Indeling

Aantal bouwlagen
2
Aantal kamers
3 (waarvan 2 slaapkamers)
Aantal badkamers
1 (en 1 apart toilet)

Tuin

Type
Achtertuin
Oriëntering
Noorden
Heeft een achterom
Ja
Staat
Normaal

Energieverbruik

Energielabel
A

CV ketel

Warmtebron
Gas
Eigendom
Eigendom

Uitrusting

Warm water
CV-ketel
Verwarmingssysteem
Centrale verwarming
Badkamervoorzieningen
Douche
Wasmachineaansluiting
Wastafel
Wastafelmeubel
Tuin aanwezig
Ja
Heeft zonnepanelen
Ja

Kadastrale gegevens

Kadastrale aanduiding
Groningen D 5497
Omvang
Appartementsrecht of complex
Eigendomsituatie
Eigen grond

Media

Plattegronden